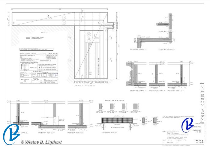
Opdrachtgever: Wietse B. Ligthart Bouw-Tekenburo/ boubedriuw Kooistra Kubaard Wommels.
Voor dit project hebben wij de engineering mbt sterkteberekeningen en constructietekeningen gemaakt. Vanaf o.a. de heifundering, betonkelder, houtskeletbouw, houtenbalklagen, staalconstructies, of herberekeningen en controle bestaande constructies is alles doorgerekend om een zo goedkoop mogelijke en verantwoorde constructie te maken conform de Eurocodes. Keep it simple! meer info>>>
Uitvoering: boubedriuw Kooistra Kubaard Wommels.











