Opdrachtgever: Bouw-Tekenburo Wietse B. Ligthart /Mehotech
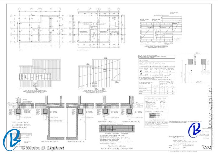
Voor dit project hebben wij de engineering mbt sterkteberekeningen en constructietekeningen gemaakt. Vanaf o.a. de heifundering, betonkelder, houtskeletbouw, houtenbalklagen, staalconstructies, of herberekeningen en controle bestaande constructies is alles doorgerekend om een zo goedkoop mogelijke en verantwoorde constructie te maken conform de Eurocodes. Keep it simple! Nieuwbouw woning en houten schuur (traditionele houtconstructie met binten en sporen) te Hichtum.
Uitvoering: eigen beheer.





